東京駅 直結約8

都心への軽快な接続と、
ベイエリアの開放感が共存する潮見。

POINT

京葉線 「潮見」駅 徒歩8

東京駅へ約8分直結の利便性。水辺の開放感とともに、
ペットと暮らす豊かな都市生活を叶えるレジデンス。

  1. アクセス良好
    3駅利用可

  2. インターネット
    無料
    (コンセントWifi)

  3. ペット飼育相談
    (小型犬or猫2匹まで)

    ※敷金1ヶ月追加

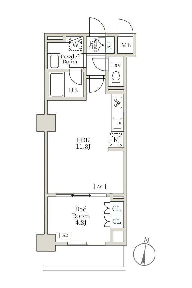
PLAN / ROOM

  • TYPEA

    1LDK

    平米数37.45

    TYPE A
  • TYPEB

    1LDK

    平米数34.61, 34.65

    TYPE B
  • TYPEC

    1LDK

    平米数40.03, 40.21

    TYPE C
  • TYPED

    1LDK

    平米数57.71

    TYPE D
  • TYPEE

    1LDK

    平米数38.82

    TYPE E
  • TYPEF

    1LDK

    平米数37.47

    TYPE F
  • TYPEG

    1LDK

    平米数40.16

    TYPE G
  • TYPEH

    1LDK

    平米数38.44

    TYPE H

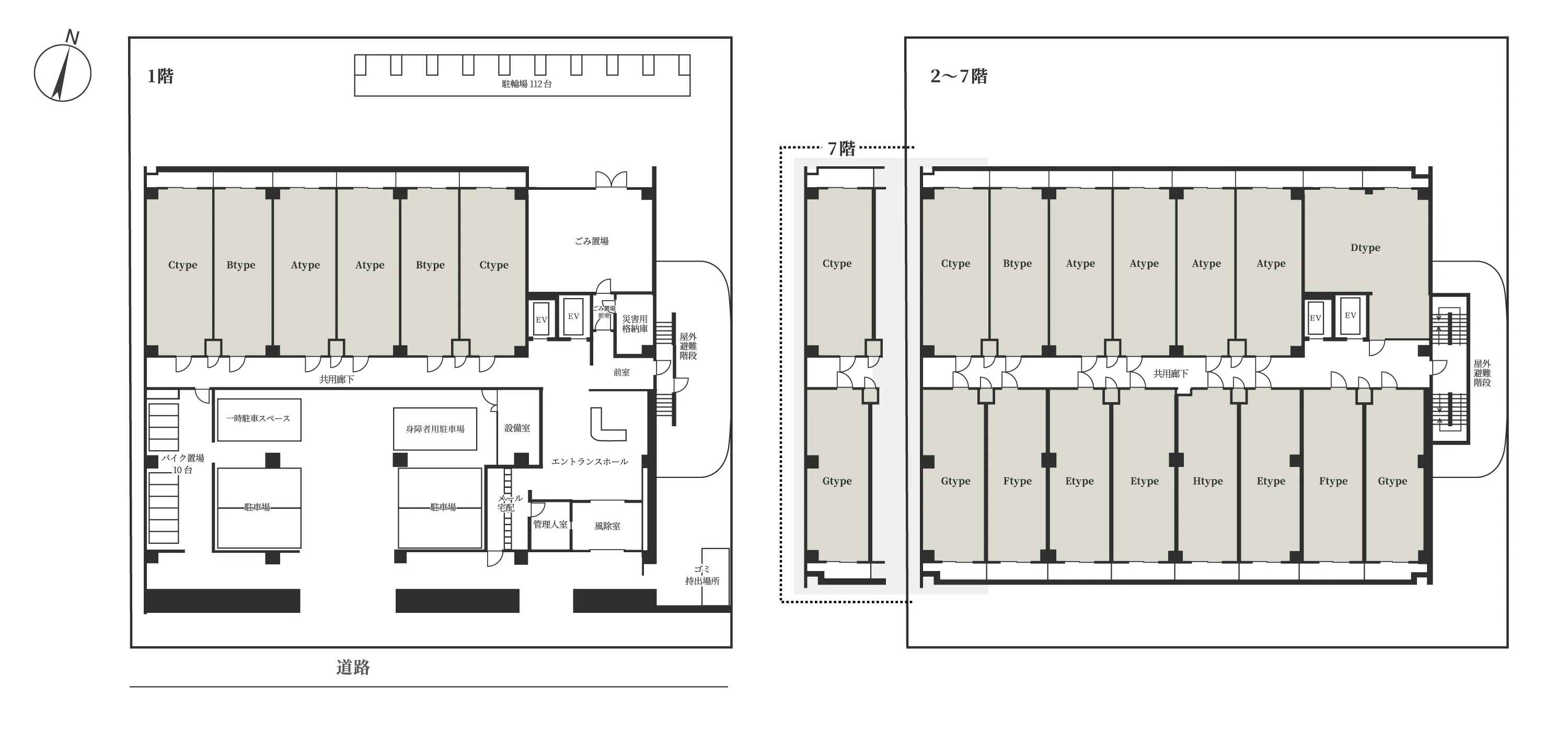
フロア配置図

フロア配置図

PLAN / ROOM

ACCESS

都心主要駅へ直結。
ビジネスもレジャーも自在にする、軽快なマルチアクセス。

アクセスマップ

アクセス詳細

  • 京葉線

    「潮見」
    徒歩8
  • 東京メトロ有楽町線

    「豊洲」
    徒歩22
  • 東京メトロ東西線

    「木場」
    徒歩22

主要駅所要時間

  • JR線

    「東京」駅まで
    直通約8
  • 東京ディズニーリゾート

    「舞浜」駅まで
    10
  • JR線

    「新宿」駅まで
    33

ACCESS

LOCATION

LOCATION

都心近接の軽快さと、水辺の安らぎが交錯するベイエリア。

周辺案内図
  • セブンイレブン 徒歩3分(230m)

    セブンイレブン 徒歩3分(230m)

  • 潮見運動公園 徒歩7分(550m)

    潮見運動公園 徒歩7分(550m)

  • くじらホスピタル 徒歩11分(850m)

    くじらホスピタル 徒歩11分(850m)

  • スーパーマーケット(マルエツ) 徒歩12分(950m)

    スーパーマーケット(マルエツ) 徒歩12分(950m)

  • イトーヨーカドー 徒歩14分(1,100m)

    イトーヨーカドー 徒歩14分(1,100m)

  • ららぽーと豊洲 徒歩27分(1,900m)

    ららぽーと豊洲 徒歩27分(1,900m)

Property Description

  • 名称
    ロイジェント潮見
  • 所在地
    東京都江東区枝川三丁目10番9号
  • 交通
    京葉線「潮見」駅徒歩8分
    東京メトロ有楽町線「豊洲」駅徒歩22分
    東京メトロ東西線「木場」駅徒歩22分
  • 構造・規模
    RC造地上7階建
  • 間取り・専有面積
    1LDK / 34.61㎡~57.71㎡
  • 総戸数
    全96戸
  • 共用部設備
    オートロック / カードキー / 防犯カメラ / 宅配ボックス / エレベーター / 敷地内ゴミ置き場
  • 専有部設備
    インターネット無料 /TVモニター付きインターホン/ エアコン2台完備/ リビングリモコン調光LEDシーリングライト/フローリング/二重床・二重天井 / システムキッチン/3口ガスコンロ / 温水洗浄暖房便座 / 浴室換気乾燥機 / 独立洗面化粧台 / 追焚き機能付きバス / シューズボックス/クローゼット/ソフトクローザー
  • 駐車場
    33,000円/月(税込)・4台
  • 駐輪場
    登録料 3,300円(税込)・112台
  • バイク置場
    3,300円/月(税込)・10台
  • 竣工
    2026年2月20日
  • 入居開始日
    2026年3月
  • 情報公開日
    2026年1月
  • 備考
    1年未満の短期解約違約金:賃料の1ヶ月+フリーレント相当分/二人入居可/SOHO不可/ペット相談(小型犬or猫2匹まで可、敷金1ヶ月追加)
    更新料:新賃料 1ヶ月分/ 保険:加入要/契約期間:2年
    ※図面と現況に相違がある場合は、現況優先とします

Property Description