コンテンツへ
ナビゲーションへ
PLAN
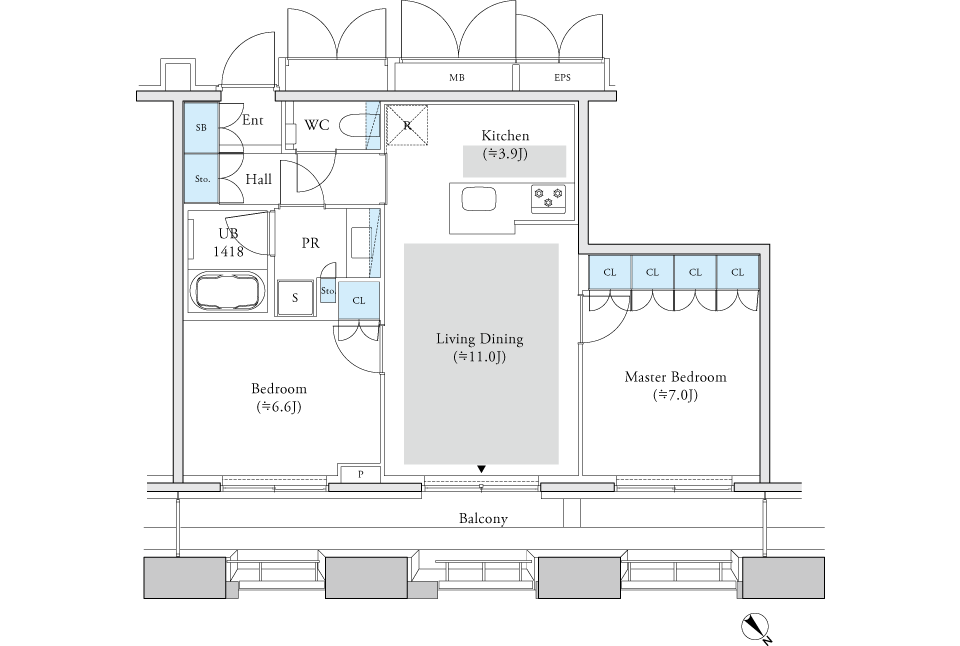
間取り
Image Photo
G-1type
2LDK:62.77m²
Merit of this plans.
一覧へ戻る
Model room photo
Living Dining
2020年4月撮影
Model room photo
Living Dining
2020年4月撮影
Model room photo
Master Bedroom
2020年4月撮影
Model room photo
Bedroom
2020年4月撮影
Model room photo
Kitchen
2020年4月撮影
当サイトを最適な状態で閲覧していただくにはブラウザの
JavaScriptを有効
にしてご利用下さい。
JavaScriptを無効のままご覧いただいた場合には一部機能がご利用頂けない場合や正しい情報を取得できない場合がございます。